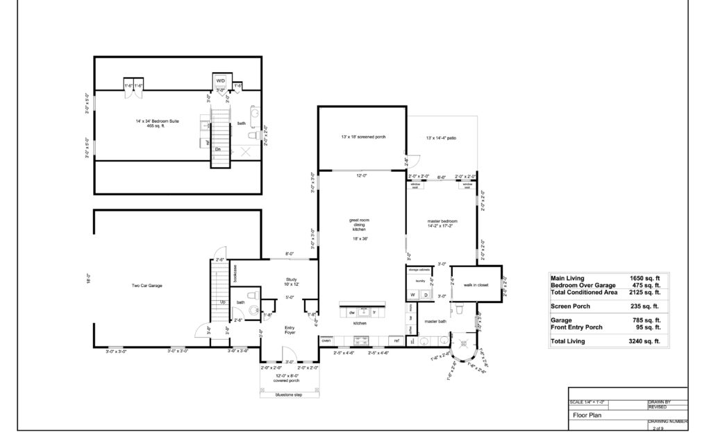
This custom home features an open floorplan with master suite, kitchen-dining-great room, study, porch, patio and two car garage. The guest suite with breakfast kitchen is located over the garage for maximum privacy. Under construction for $1,240,000.


